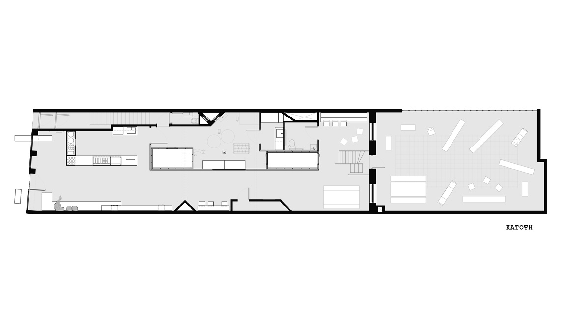
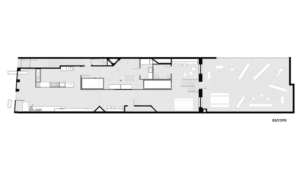
Greecologies


Architect

Dionisis Sotovikis

Collaborating Architects

Vangelis Voyatzis, Fotini Diplarakou

Construction

Dionisis Sotovikis

Photos

Vaggelis Paterakis

Year

2014




Privacy Policy – Cookie Settings

Privacy Preference Center