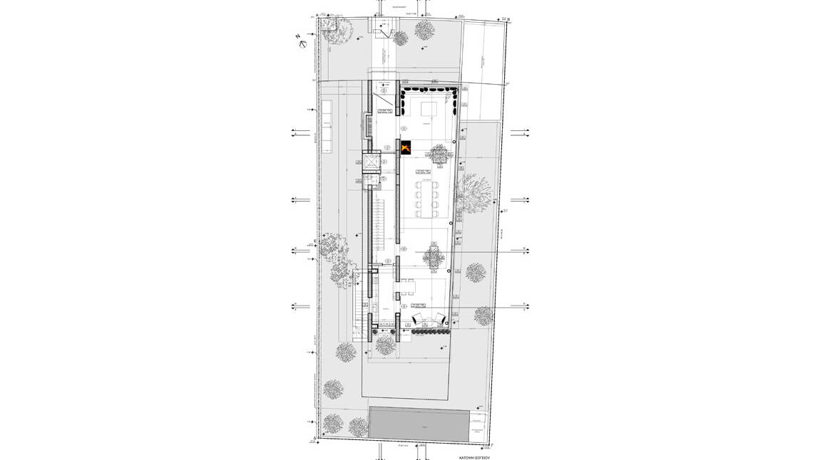
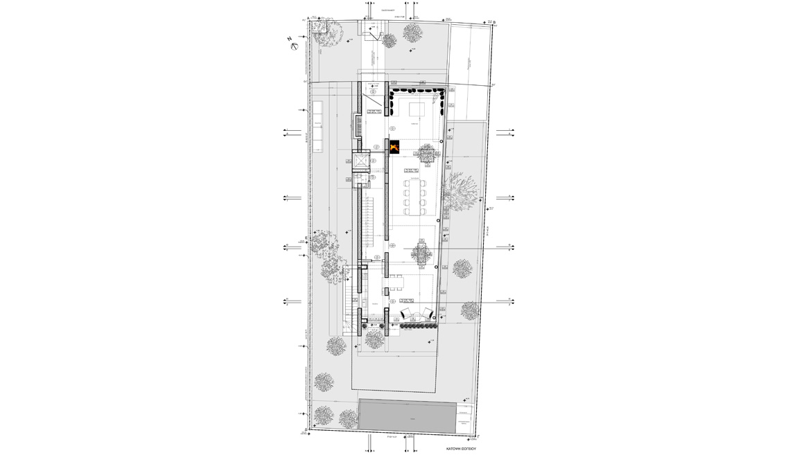
Through the Walls
Architect
Dionisis Sotovikis
Collaborating Architects
Elias Romanas, Vangelis Voyatzis
Construction
Dionisis Sotovikis
Mechanical Engineer
Markos Kafetzopoulos
Structural Engineer
Christos Papadopoulos
Photos
Dionisis Sotovikis
Year
2015

















































