The Pulse


Architect

Dionisis Sotovikis

Year

2015

Collaborating Architects

Vangelis Voyatzis, Zoe Viaropoulou, Fotini Diplarakou





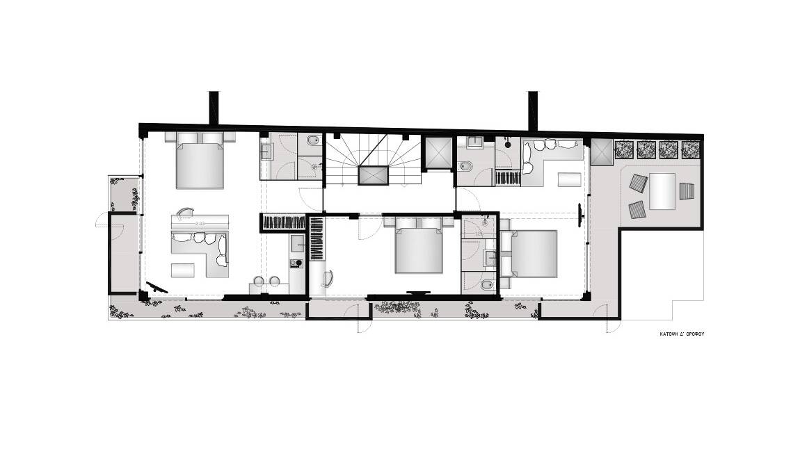
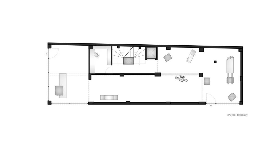
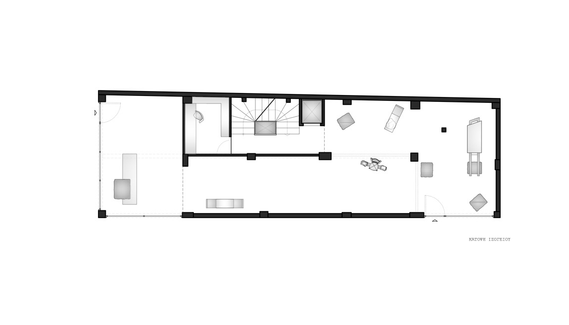
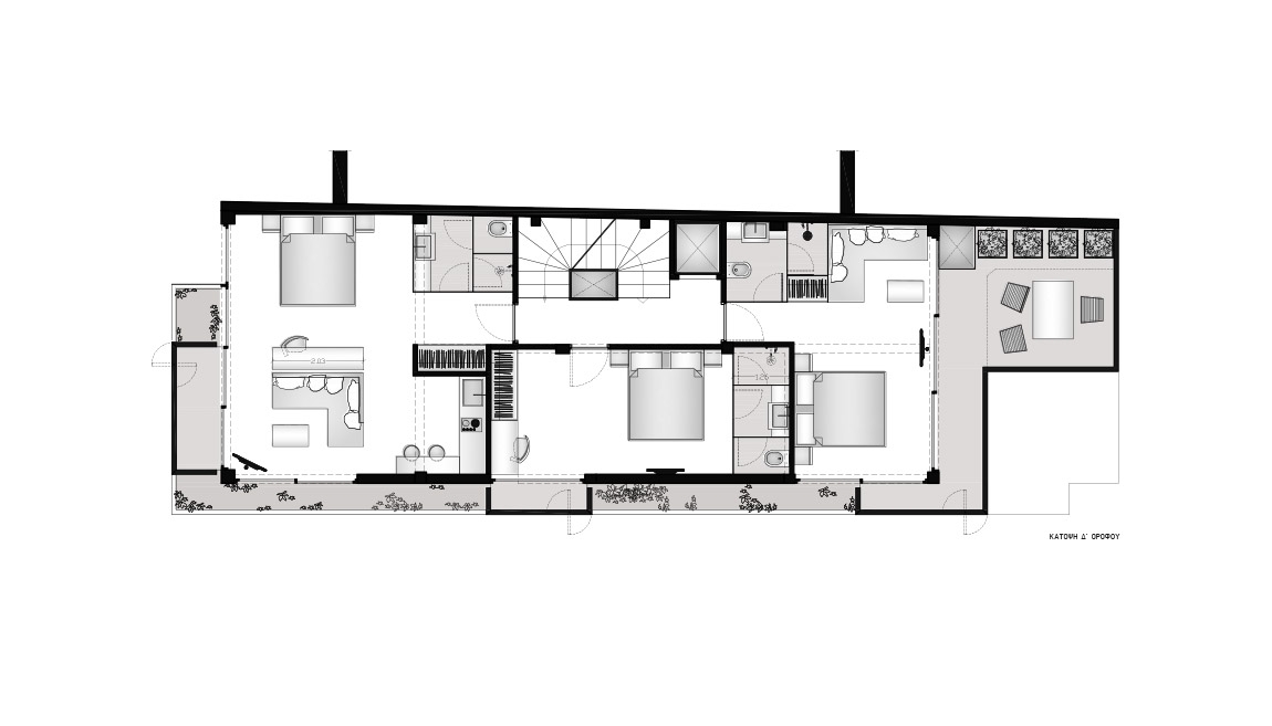
Open space kitchen

Privacy Policy – Cookie Settings

Privacy Preference Center